跳到主要內容區塊
:::
網站導覽
館廳資訊
回首頁
English
聯絡信箱
本月活動
搜尋
搜尋
關鍵字:
新竹YouBike
進階搜尋
認識文化局
歷史沿革
組織架構
局長介紹
業務職掌
科室電話分機
交通位置
意見信箱
館廳資訊
公告資訊
最新公告
活動訊息
招標資訊
轉知訊息
人事公告
臉書專區
一般性表格下載
RSS訂閱
資通安全政策聲明
職業衛生安全專區
業務項目
公共藝術
新竹市博物館群
工藝之家
館藏品
博物館文物查詢
美術典藏查詢
館藏文物
表演藝術
公告
場地租借辦法
已立案登記演藝團體
藝術季補助核銷表格
新竹市立演藝團體
演藝團隊立案申請表格下載
演藝團體變更(換補)登記申請表
新竹市街頭藝人
新竹市傑出演藝團隊
文化資產
公告
文資審議
文化資產地圖
新竹市文化資產列表
文化資產各類申請表單
文化資產類法規查詢
新竹市文化資產查詢
社區總體營造
公告
社區總體營造共創平台組織分工
新竹市社造中心
社區總體營造成果專輯
新竹市地方寶藏資料庫
文化櫥窗
竹塹文學獎
公告
文學獎出版品
老竹塹老屋味
公告
人物誌
新竹美展
公告
歷屆竹塹獎得主
文化志工
新竹市文化志工隊
志工隊管理規範
文化局志工隊組織架構
文化局志工隊報名表
新竹市文化局志工隊FB
志工支援場館一覽表
影視協拍服務
線上看展專區
新竹市政府私立博物館設立登記(變更)
主題館
玻璃工藝博物館
公告
關於玻工館
玻璃與新竹
交通資訊
玻璃工坊
參觀資訊
預約導覽
影像博物館
公告
歷史沿革
參觀資訊
新竹老戲院
預約導覽
眷村博物館
公告
眷村博物館緣起
空間介紹
參觀資訊
眷村家族
眷村老照片
眷村史料
預約導覽
黑蝙蝠中隊文物陳列館
公告
館舍介紹
黑蝙蝠隊徽與隊名的由來
主題展區介紹
黑蝙蝠中隊簡介
空間配置
參觀資訊
預約導覽
風livehouse
公告
風livehouse場地及設備介紹
平面示意圖
收費標準
風livehouse硬體設備清單114年
風livehouse技術需求表20240524
新竹市圖書館
新竹市圖書館網站
新竹市圖書館館藏查詢
公告
將軍村開放圖書資訊園區
公告
園區介紹
參觀資訊
將軍村網站
將軍村FB
辛志平校長故居
公告
活動資訊
歷史沿革
建築特色
教育理念
生平事略
生平年表
參觀資訊
新竹水道取水口展示館
公告
館舍介紹
參觀資訊
預約導覽
鐵道藝術村
公告
活動資訊
村落歷史
村內風景
如何去藝術村
駐村藝術家
鐵道藝術村FB
美術館
公告
活動資訊
館舍介紹
建築特色
參觀資訊
新竹市美術館FB
241藝術空間
公告
活動資訊
館舍介紹
參觀資訊
241藝術空間FB
學生公共服務
演藝廳
公告
售票系統與購票地點
演藝廳簡介(技術資料)
身心障礙人士服務措施
索票資訊
觀眾入場須知
參觀資訊
風城演藝FB
新竹少年刑務所演武場
公告
館舍介紹
參觀資訊
南大路警察宿舍
公告
館舍介紹
參觀資訊
南大路警察宿舍FB
李克承博士故居
公告
館舍介紹
參觀資訊
新竹州警務部部長官舍
公告
館舍介紹
參觀資訊
進士第(鄭用錫宅第)
公告
館舍介紹
參觀資訊
便民服務
補助資訊公告專區
補助資訊公告
身分關係揭露表【A事前揭露】
身分關係揭露表【B事後公開】
藝文場館場地租借
新竹市影像博物館場地使用管理自治條例
新竹市鐵道藝術村場地租借
新竹市新竹公園音樂藝文展演空間場地使用管理自治條例
新竹市演藝廳場地使用管理自治條例
開放租借公共空間、場地一覽表
展覽\展演申請
基金會設立
申請設立新竹市文化藝術財團法人須知
說明與文件下載
街頭藝人(申請表格)
演藝團體自治條例
藝術季補助核銷表格(演藝廳)
藝術季審查(演藝廳、風livehouse)
藝術季審查計畫
表格下載
線上申請連結
學習資源
館館探索實境解謎遊戲
館舍教案和學習輔具
常見問答
影音專區
文化資產各類申請表單
預約導覽
活動報名
政府公開資訊
主動公開政府資訊
新竹市政統計
出版品
竹塹文獻
展覽專輯
文化局出版品
《新竹生活》雙月刊
竹塹文學獎得獎作品輯及文學相關出版品
新竹市文化基金會
公告
決算
文化教育推廣補助實施計畫
捐助及組織章程
性別主流化專區
公職人員利益衝突迴避專區
公職人員利益衝突迴避法第14條身分關係揭露專區
[A.事前揭露]身分關係揭露表範本
[B.事後公開]身分關係揭露表範本
[範例][A.事前、B事後]身分關係揭露表範本
公職人員利益迴避身分揭露專區
廉政專區
兩公約規範與人權教育專區
國際人權公約概要
公民與政治權利國際公約
經濟社會文化權利國際公約
公民與政治權利國際公約及經濟社會文化權利國際公約施行法
人權案例解析
CRPD身心障礙者權利公約
新竹市世博基金
新竹市世博台灣館產創園區作業基金會計制度
出資贊助文化資產全額抵稅
機關檔案應用
機關檔案目錄查詢
新竹市政府檔案應用申請注意事項
新竹市文化局檔案應用申請書
安全及衛生防護專區
安全及衛生防護委員會會議紀錄
:::
目前位置:
首頁
>
主題館
>
風livehouse
>
平面示意圖
字級:
小
中
大
『您的瀏覽器不支援JavaScript功能,若網頁功能無法正常使用時,請開啟瀏覽器JavaScript狀態』
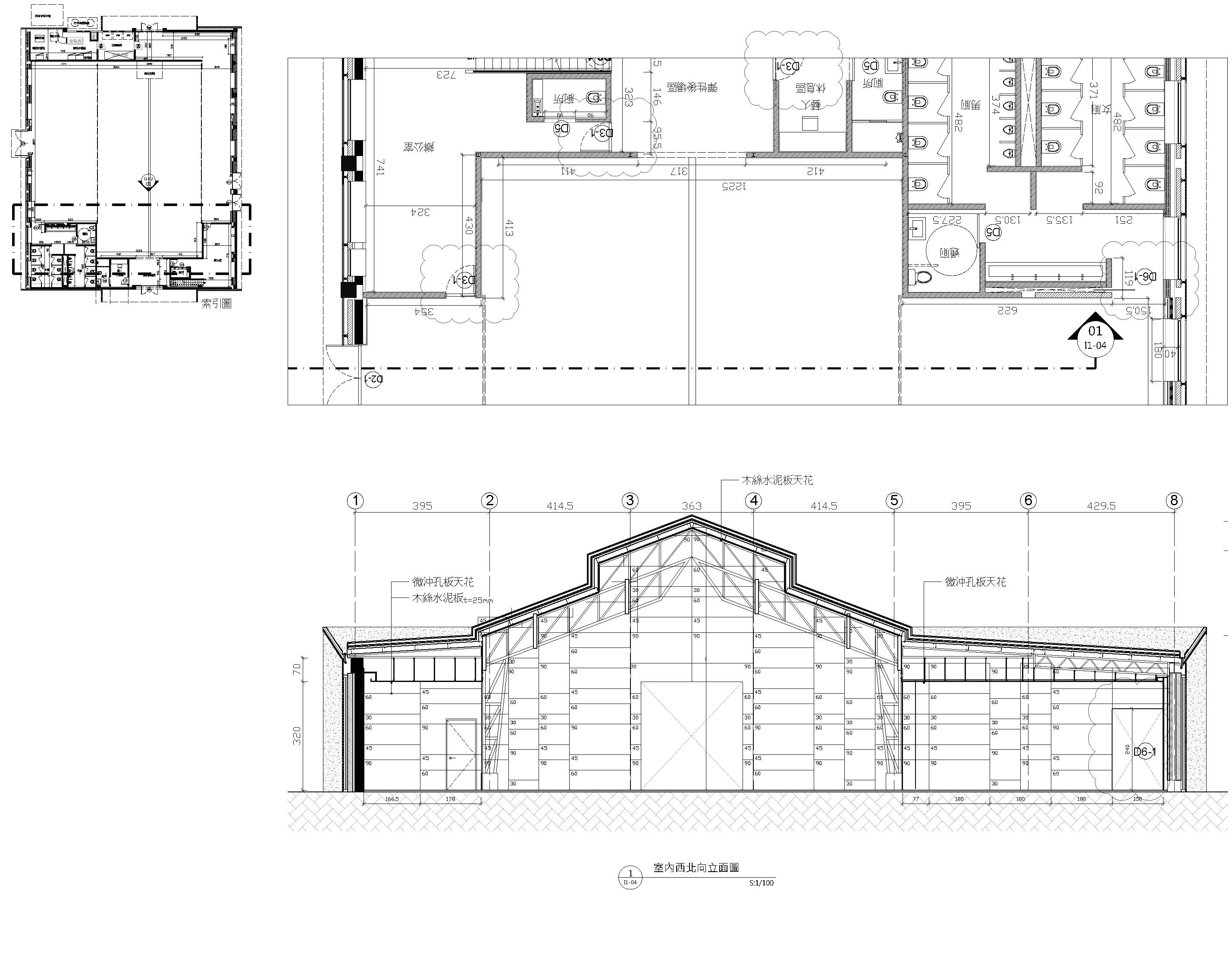
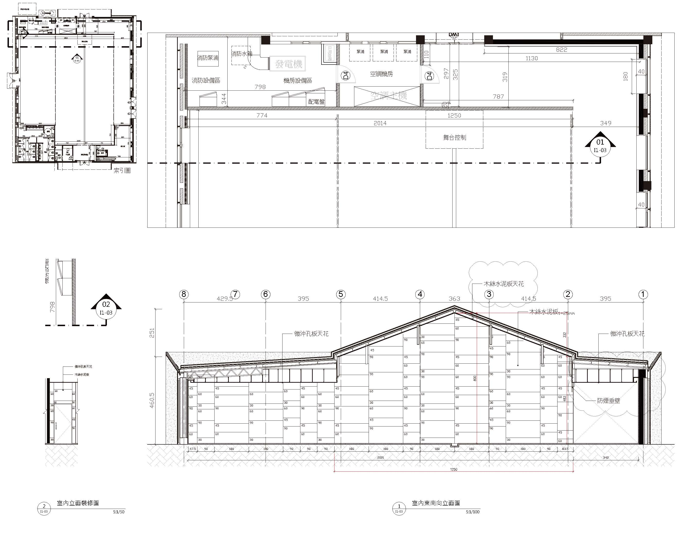
平面示意圖
風livehouse全區整修平面配置圖01
風livehouse全區整修平面配置圖02
風livehouse西北向立面圖
風livehouse東南向立面圖
風livehouse東北向立面開窗、立面結構
風livehouse西南向立面開窗、立面結構
風livehouse室內東南向立面圖
風livehouse室內西北向立面圖
瀏覽人次:10235 人 更新日期:108-12-20
回上頁
回首頁
置頂
您的瀏覽器不支援 JavaScript 或 JavaScript 已停用,請點選「
災害警示資訊
」檢視詳細內容。
您的瀏覽器不支援 JavaScript 或 JavaScript 已停用,請點選「
災害警示資訊
」檢視詳細內容。
災害警示資訊區
災害警示
災害警示資訊
讀取中…
災害警示資訊結束